Culture and leisure
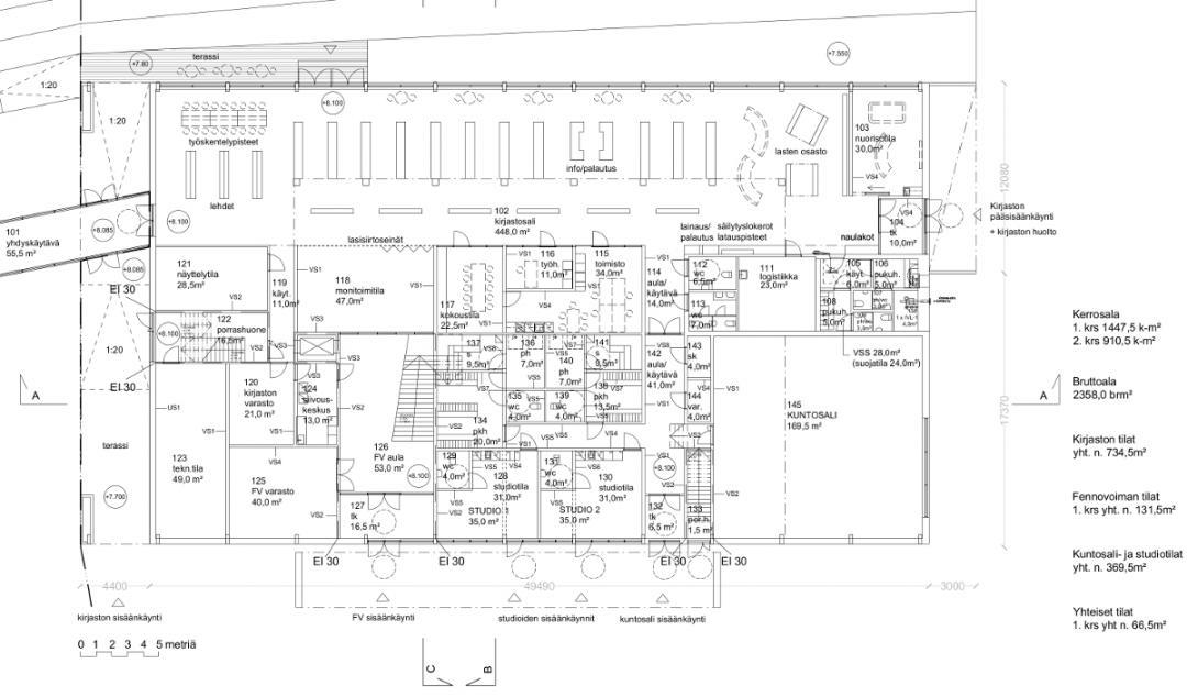
Pyhäjoki House Library
Pyhäjoki's new library will be located at the Pyhäjoki House at the river bank, between the bridges.
Pyhäjoki House was designed by the Architect Office m3. The planning work was supported by several resident and user workshops.


